Terrain à Salernes

Terrain à Salernes

158 000 €
Honoraires agence à charge vendeur

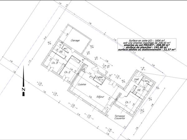
À seulement quelques minutes du centre de Salernes, dans un environnement calme et champêtre, terrain plat de 2 228 m2 dont 1 604 m2 en zone UCR (constructible) et 624 m2 en zone naturelle (Ni). Viabilités en bordure.
Le terrain bénéficie d'un permis de construire pour une maison de 141 m2 comprenant trois chambres, deux salles d'eau, deux WC, un salon-séjour, un garage, une terrasse couverte et une piscine.
Présence d'un canal d'arrosage avec une faible cotisation annuelle, un atout supplémentaire pour l'entretien du jardin ou des espaces verts.
Ce bien constitue une belle opportunité pour toute personne souhaitant faire construire rapidement, sans attendre les délais d'instruction. L'environnement paisible et la proximité du centre de Salernes en font un emplacement privilégié.
Pour plus d'informations, veuillez nous contacter.

Photo de
Photo de
Photo de
Photo de
Photo de
Photo de

Caractéristiques

ville : Salernes
région : Provence-Alpes-Côte d'Azur
Mandat : R1101
Type : Terrain
surface : 2228 m²
terrain : 2228 m²
Easy immo
04 94 47 69 09
Les informations sur les risques auxquels ce bien est exposé sont disponibles sur le site Géorisques https://www.georisques.gouv.fr.